Mehr Raum. Mehr Licht. Mehr Freiheit - 4-Zimmer-Maisonette plus Küche und 2-Freiflächen.
Objektart
Adresse
Objektdaten
Informationen
Ausstattung
Details
MEHR RAUM. MEHR LICHT. MEHR FREIHEIT - 4-ZIMMER-MAISONETTE PLUS KÜCHE UND 2-FREIFLÄCHEN.
In der beliebten Wohngegend rund um den Trillerpark befindet sich diese großzügige Maisonette-Wohnung in der Trillergasse 2. Die Wohnung erstreckt sich vom 1. über das 2. Obergeschoss und bietet ein modernes Wohnambiente mit klar getrennten Wohn- und Ruhezonen.
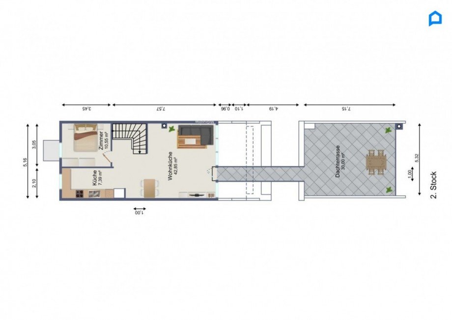
Die Wohnfläche beträgt insgesamt 108,44 m² und wird durch eine Loggia mit 8,45 m², eine Terrasse mit 8,72 m² sowie eine großzügige Dachterrasse mit 38 m² ergänzt, die zur alleinigen Nutzung zur Verfügung steht.
Die Wohnung verfügt über insgesamt vier Zimmer, eine **separate Küche sowie ein eigenes Kellerabteil, das zusätzlichen Stauraum bietet. Optional können Garagenplätze im Haus angemietet werden.
HIER GEHTS DIREKT ZUR 360 GRAD ONLINE BESICHTIGUNG:HTTPS://MY.MATTERPORT.COM/SHOW/?M=TQAUDLS7RQP [https://my.matterport.com/show/?m=tqaUdLs7rqP]
* Wohnfläche: 108,44 m²
* 4 Zimmer + separate Küche
* Loggia: 8,45 m²
* Terrasse: 8,72 m²
* Dachterrasse: 38 m² (zur alleinigen Nutzung)
* Kellerabteil vorhanden
* Garagenplätze optional anmietbar
Der Zugang erfolgt über das 1. Obergeschoss. Über die interne Maisonette-Treppe gelangt man in das 2. Obergeschoss, welches weitere Wohnräume sowie den direkten Zugang zu den Freiflächen bietet.
Die Loggia und Terrasse schaffen Erholungsbereiche direkt am Wohnraum. Die große Dachterrasse ermöglicht vielseitige Nutzung - sei es zum Entspannen, für Pflanzen oder gesellige Abende.
INFRASTRUKTUR & VERKEHRSANBINDUNG
Die Lage rund um die Trillergasse bietet eine hervorragende Verkehrsanbindung:
* Buslinien befinden sich in unmittelbarer Nähe und verbinden schnell Richtung Floridsdorf und Stammersdorf.
* Straßenbahnlinien (u. a. Richtung Stammersdorf) erleichtern die Anbindung an wichtige Verkehrsachsen.
* U-Bahn-Anschluss (U1) ist gut erreichbar und ermöglicht eine rasche Verbindung ins Stadtzentrum.
* Autobahnanschluss (A22) sorgt für ideale Erreichbarkeit mit dem Auto.
FREIZEIT & NAHERHOLUNG
Die Umgebung bietet zahlreiche Möglichkeiten zur Erholung und Freizeitgestaltung:
* Der Marchfeldkanal lädt zu Lauf- und Radstrecken sowie entspannten Spaziergängen ein.
* Der Bisamberg ist schnell erreichbar und ein beliebtes Ziel zum Wandern, Spazieren und Genießen der Natur.
* Das charmante Stammersdorf bietet Heurige, Spazierwege durch die Weinberge und traditionelle Wiener Atmosphäre.
* Die Donauinsel bietet vielfältige Sport-, Freizeit- und Erholungsmöglichkeiten.
* Der nahegelegene Trillerpark bietet Gastronomie, Einkaufsmöglichkeiten und Grünflächen.
Diese Maisonette-Wohnung vereint großzügigen Wohnraum, attraktive Freiflächen und eine ausgezeichnete Infrastruktur - perfekt für alle, die urbanes Wohnen mit hohem Freizeitwert verbinden möchten.
DER KAUFPREIS BETRÄGT EURO 549.890,--
FÜR FRAGEN UND BESICHTIGUNGEN SENDEN SIE BITTE EINE EMAIL AN OFFICE@POSCH-IMMOBILIEN.AT ODER RUFEN SIE HERRN ING,POSCH UNTER +43699/15115000 AN.
SIE WOLLEN IHR HAUS, GRUNDSTÜCK IHRE EIGENTUMSWOHNUNG VERKAUFEN ? KONTAKTIEREN SIE UNS GERNE FÜR EINE PROFESSIONELLE MARKTEINSCHÄTZUNG !
Der Vermittler ist als Doppelmakler tätig.
Trillerpark
Ansprechpartner
Mobil: +43 699 151 15000
office@posch-immobilien.at
Links
Ich bin damit einverstanden, dass mir Karten von Google angezeigt werden. Es gelten die Datenschutzbedingungen von Google (https://policies.google.com/privacy).
Ich bin einverstanden