ERSTBEZUG, TOP 7, JETZT einziehen! Kernsanierter Albau mit modernster Ausstattung ab 41 m² -148m² Wohnfläche, 2-4 Zimmer plus Nebenräume, Etagen- und DG Wohnungen, Kurzzeitvermietung möglich !
Objektart
Adresse
Objektdaten
Informationen
Ausstattung
Details
FERTIGGESTELLT ! HOCHWERTIGSTE - EIGENTUMSWOHNUNGEN AM AKKONPLATZ 2, 1150 WIEN, 400 M ZUR U-BAHN U3 STATION HÜTTELDORFERSTRASSE, BEZUGSFERTIG (ALS VORSORGEWOHNUNG UND TEILWEISE AUCH FÜR KURZZEITVERMIETUNG ZU ERWERBEN)
"HISTORISCHER CHARME TRIFFT MODERNSTEN WOHNKOMFORT" STILVOLL-NACHHALTIG-ZUKUNFTSSICHER, 8 EINHEITEN BEREITS VERKAUFT!! ANFRAGEN DIREKT AN OFFICE@POSCH-IMMOBILIEN.AT ODER 0699/15115000 HERR ING.ROBERT POSCH. GERNE AUCH PER WHATSAPP!
In einer der aufstrebendsten Wohnlagen Wiens entstand diese exklusive Wohnprojekt im historischen Gebäude am Akkonplatz 2. Das prachtvolle Haus aus den Jahren 1913-1914 wurde umfassend generalsaniert (Kernsanierung) und bietet ein ideales Zuhause für Familien, Paare und Singles . Auch für Anleger bietet sich hier die Möglichkeit etwas besonderes, nachhaltiges in Form einer Vorsorgewohnung zu erwerben.
Einige dieser sehr schönen Wohnungen verfügen auch eine Widmung für Kurzzeitvermietungen (z.b AirBNB, Booking, etc..)
Hier verschmelzen historischer Charme und moderne Technik zu einem einzigartigen Wohngefühl in höchster Qualität. Fußbodenheizung und zugfreie Deckenkühlung sind hier gelebter und komfortabler Standard! Nur 33 Cent pro m² und Monat !
FAST ALLE EINHEITEN VERFÜGEN ÜBER ATTRAKTIVE FREIFLÄCHEN WIE BALKON, TERRASSE, LOGGIA ODER GARTEN. ALLE WOHNUNGEN VERFÜGEN ZUSÄTZLICH ÜBER EIN KELLERABTEIL. DIE FERTIGSTELLUNG IST BEREITS ERFOLGT UND DIE WOHNUNGEN SIND SOFORT BEZIEHBAR.
HIER FINDEN SIE ALLE FREIEN WOHNUNGEN [https://www.posch-immobilien.at/KaufenMieten.htm]
* TOP 1-4 / VERKAUFT
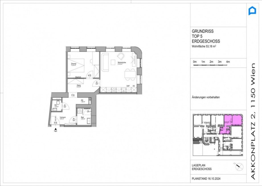
* TOP 5 / Hochparterre /Altbau kernsaniert: Wohnfläche: 53,18 m²/ 2 Zimmer/ KP: EUR 362.000,-- Endverbraucherpreis, EUR 226.000,-- Anlegerpreis/ für Kurzzeitvermietung gewidmet !
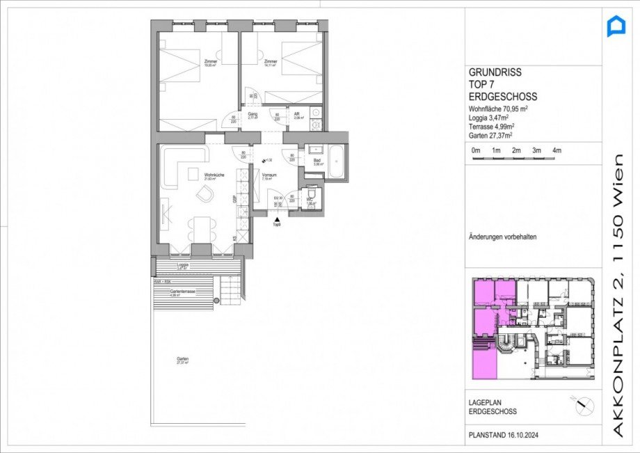
* TOP 7/ Hochparterre / Altbau kernsaniert: Wohnfläche: 70,95 m²/ 3 Zimmer/ Loggia 3,47m²/ Garten, Terrasse 32,36 m²/ KP: EUR 572.000,-- Endverbraucherpreis, EUR 532.000,-- Anlegerpreis
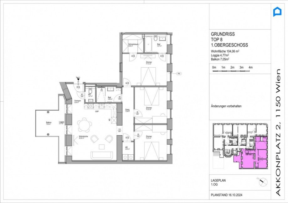
* TOP 8/ 1.OG / Altbau kernsaniert: Wohnfläche: 104,06 m²/ 4 Zimmer/ Loggia 4,77m²/ Balkon 7,05 m²/ KP: EUR 786.000,-- Endverbraucherpreis, EUR 733.000,-- Anlegerpreis
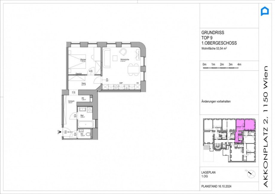
* TOP 9/ 1.OG /Altbau kernsaniert: Wohnfläche: 53,54 m²/ 2 Zimmer/ KP: EUR 375.000,-- Endverbraucherpreis, EUR 349.000,-- Anlegerpreis/ für Kurzzeitvermietung gewidmet !
* TOP 10/ VERKAUFT
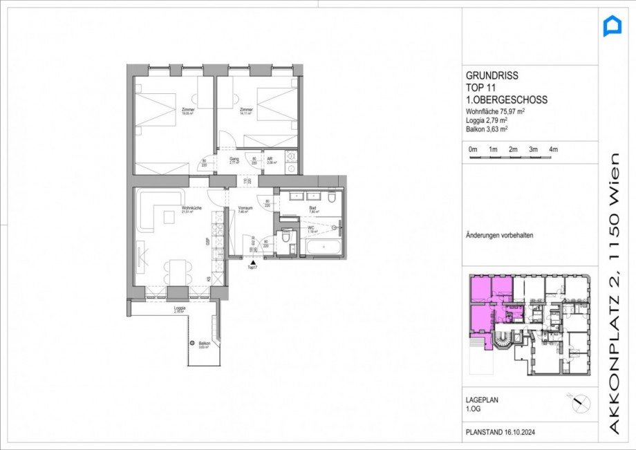
* TOP 11/ 1.OG / Altbau kernsaniert: Wohnfläche: 75,97 m²/ 3 Zimmer/ Loggia 2,79m²/ Balkon 3,63 m²/ KP: EUR 564.000,-- Endverbraucherpreis, EUR 526.000,-- Anlegerpreis
* TOP 12/ VERKAUFT
* TOP 13/ VERKAUFT
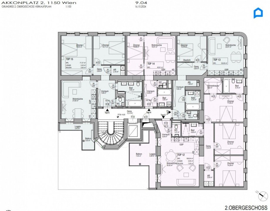
* TOP 14/ 2.OG /Altbau kernsaniert: Wohnfläche: 40,91 m²/ 2 Zimmer / KP: EUR 295.000,-- Endverbraucherpreis, EUR 275.000,-- Anlegerpreis/ für Kurzzeitvermietung gewidmet
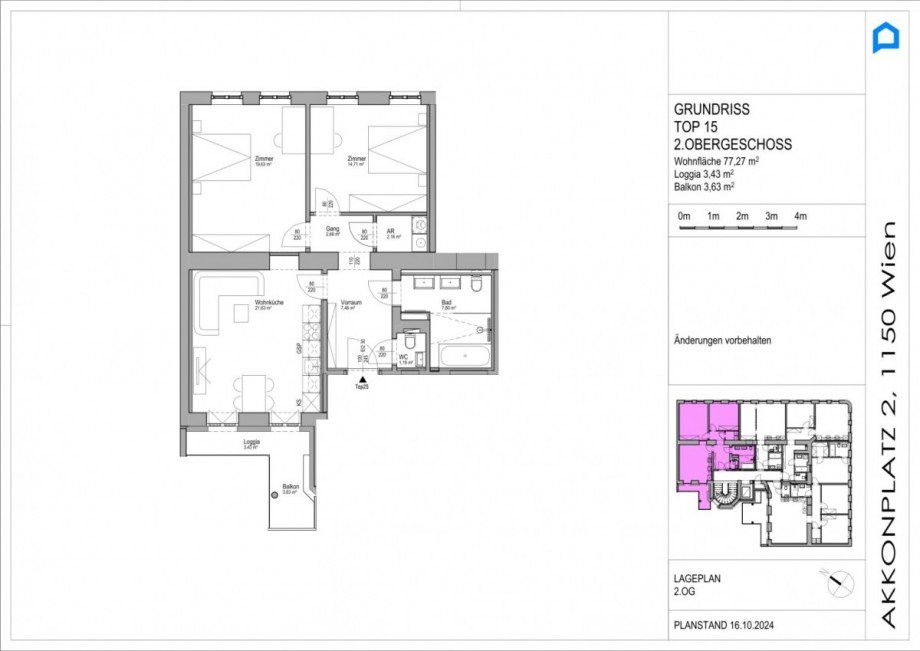
* TOP 15/ 2.OG / Altbau kernsaniert: Wohnfläche: 77,27 m²/ 3 Zimmer/ Loggia 3,43m²/ Balkon 3,63 m²/ KP: EUR 594.000,-- Endverbraucherpreis, EUR 555.000,-- Anlegerpreis
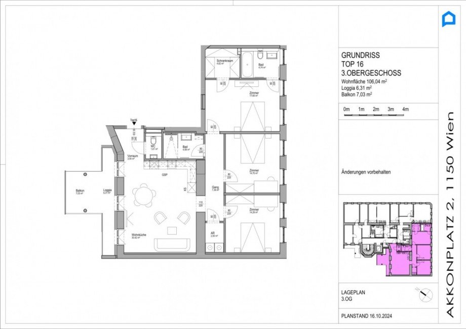
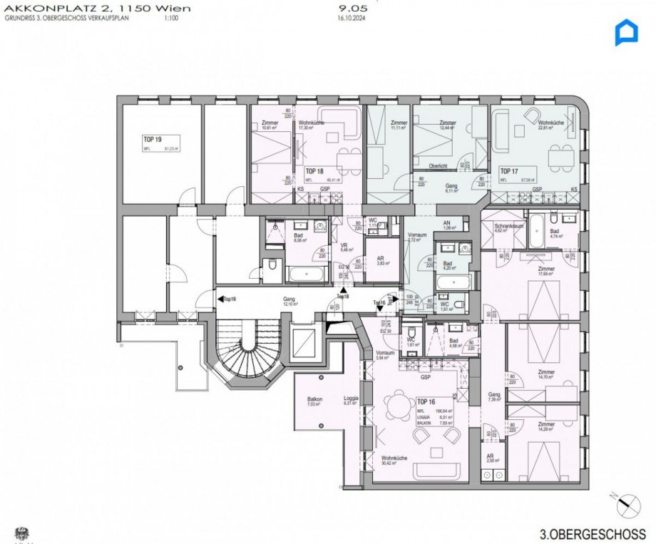
* TOP 16/ 3.OG / Altbau kernsaniert: Wohnfläche: 106,04 m²/ 4 Zimmer/ Loggia 6,31m²/ Balkon 7,03 m²/ KP: EUR 857.000,-- Endverbraucherpreis, EUR 802.000,-- Anlegerpreis
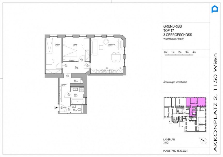
* TOP 17/ 3.OG /Altbau kernsaniert: Wohnfläche: 67,08 m²/ 3 Zimmer/ KP: EUR 496.000,-- Endverbraucherpreis, EUR 464.000,-- Anlegerpreis
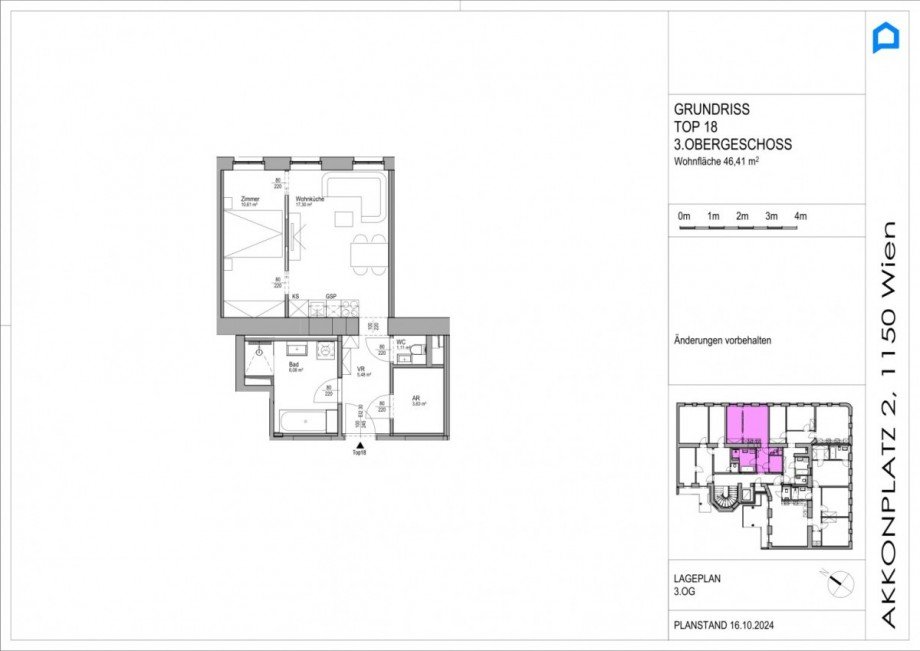
* TOP 18/ 3.OG /Altbau kernsaniert: Wohnfläche: 46,41 m²/ 2 Zimmer plus großer Abstellraum/ KP: EUR 343.000,-- Endverbraucherpreis, EUR 321.000,-- Anlegerpreis
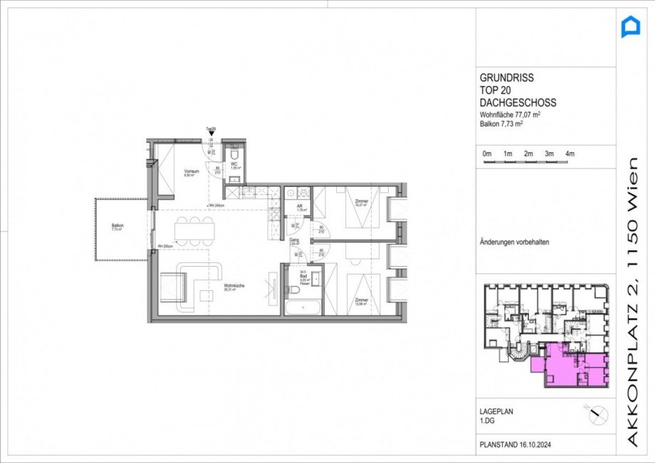
* TOP 20/ DG/ Neubau/ Wohnfläche: 77,07 m²/ 3 Zimmer/ Balkon 7,73 m²/ KP: EUR 647.000,-- Endverbraucherpreis, EUR 609.000,-- Anlegerpreis
* TOP 21/ DG/ Neubau/ Wohnfläche: 148,11 m²/ 4 Zimmer/ Terrasse 17 m²/ Dachterrasse 14,45 m², 360 Grad Blick, nachSchönbrunn über ganz Wien KP: EUR 1.282.000,-- Endverbraucherpreis, EUR 1.205.000,-- Anlegerpreis
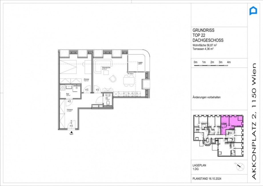
* TOP 22/ DG/ Neubau/ Wohnfläche: 56,86 m²/ 2 Zimmer/ Loggia 4,36 m²/ KP: EUR 490.000,-- Endverbraucherpreis, EUR 461.000,-- Anlegerpreis
* TOP 23/ VERKAUFT
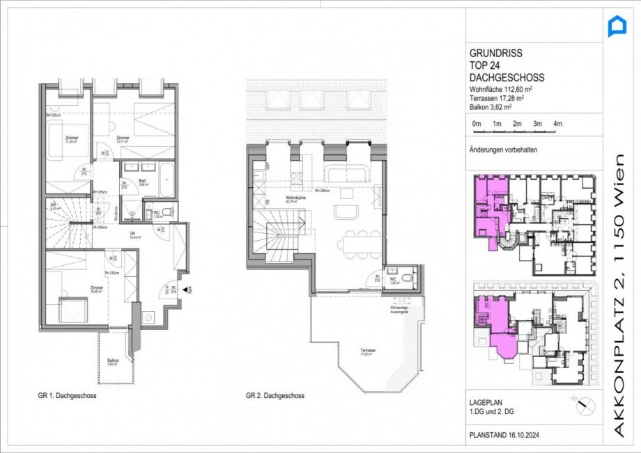
* TOP 24/ DG/ Neubau/ Wohnfläche: 112,60 m²/ 4 Zimmer/ Balkon 3,62 m²/ Terrasse 17,28 m²/ KP: EUR 984.000,-- Endverbraucherpreis, EUR 926.000,-- Anlegerpreis
LAGE & INFRASTRUKTUR
Nur wenige Schritte vom Meiselmarkt entfernt, überzeugt die Lage mit exzellenter Nahversorgung - von Supermärkten und Apotheken über Drogeriemärkte bis hin zu Bildungseinrichtungen. Freizeitangebote wie das Naherholungsgebiet "Auf der Schmelz" und die Wiener Stadthalle runden das vielfältige Umfeld ab.
Perfekte Verkehrsanbindung durch die U-Bahn-Linie U3 (Station Hütteldorfer Straße Johnstraße), die Straßenbahnlinien 49 und 10 sowie mehrere Buslinien (10A, 12A) ermöglichen eine rasche Erreichbarkeit sowohl der Innenstadt als auch grüner Rückzugsorte.
Die Entfernung zur U-Bahn-Station U3 Johnstraße beträgt ca. 800 Meter. U3 Station Hütteldorferstraße ca. 400 m. Ebenso befinden sich die Straßenbahnlinien 49 und 10 sowie die Buslinien 10A und 12A in nur rund 2 Minuten Entfernung - eine ideale Anbindung sowohl in Richtung Innenstadt als auch in grüne Naherholungsgebiete ist somit garantiert.
DAS PROJEKT
In diesem Haus wurde im Zuge der Generalsanierung (Kernsanierung) im Inneren alles vollständig neu ausgeführt - von sämtlichen Bodenaufbauten über alle Installationen bis hin zu den Innenwänden. Lediglich die historischen Außenmauern aus dem alten Mauerwerk blieben erhalten und verleihen dem Gebäude seinen besonderen Charakter.
DAS PROJEKT WURDE UNTER ANDEREM VON EINEM RENOMMIERTEN STEIRISCHEN BAUMEISTER REALISIERT, DER GROSSEN WERT AUF HOCHWERTIGE DETAILS UND NACHHALTIGE BAUWEISE LEGT. DIE LAUFENDEN BETRIEBSKOSTEN FÜR HEIZUNG UND KÜHLUNG LIEGEN DERZEIT IM DURCHSCHNITT BEI ÄUSSERST GÜNSTIGEN 33 CENT PRO M² WOHNFLÄCHE.
Das Gebäude bietet 22 hochwertig ausgestattete Eigentumswohnungen zwischen ca. 37 und 150 m²:
Das Wohnhaus umfasst ein Kellergeschoss, ein Erdgeschoss, drei Obergeschosse sowie ein ausgebautes Dachgeschoss.
Alle Ebenen sind bequem und barrierefrei über einen behindertengerechnten Personenaufzug erreichbar. Jeder Wohnung ist ein eigenes Kellerabteil zugeordnet.
Zudem steht den Bewohner:innen ein Bereich für Kinderwagen und Fahrräder auf der Liegenschaft zur Verfügung.
- 10 klassische Altbauwohnungen
- 7 Wohnungen mit Widmung für Kurzzeitvermietung (z. B. Airbnb, booking, etc.)
- 5 neu errichtete Dachgeschosswohnungen
BESONDERE FAKTEN:
* Generalsanierung der Allgemeinflächen
* 37 m² bis 150 m² Wohnfläche
* 1 bis 4-Zimmer-Wohnungen
* Teilweise Balkon, Terrasse oder Garten
* Topausstattung
* Behindertengerechter Personenlift
* Fahrrad/Kinderwagenabstellbereich
* Kellerabteile
* Sofort beziehbar
HIGHLIGHTS DER AUSSTATTUNG:
* Massivbauweise mit erstklassiger Bauqualität
* Luftwärmepumpe mit Heiz- und Kühlfunktion über Kühldecken
* Alle Wohnungen Fußbodenheizung/-Deckenkühlung
* Eichenparkett in den Wohnbereichen
* Großformatiges Feinsteinzeug in Bad & WC (60x30/60x60)
* Hochwertige Sanitärausstattung
* Barrierefreier Personenaufzug vom Keller bis ins Dachgeschoss
* Eigene Kellerabteile & Fahrrad-/Kinderwagenräume
* Gegensprechanlage
* Schlüssefertige Übergabe in hochwertigster Ausstattung
ATTRAKTIV FÜR EIGENNUTZER & ANLEGER
Mit durchdachten Grundrissen, modernem Komfort und hoher Bauqualität eignen sich die Wohnungen sowohl für den Eigenbedarf als auch als zukunftssichere Vorsorgewohnungen. Für Investoren besonders interessant: Die Widmung zur Kurzzeitvermietung bei ausgewählten Einheiten.
HINWEIS ZUR KAUFABWICKLUNG UND NEBENKOSTEN:
Die kaufvertragliche Abwicklung sowie die Treuhandschaft erfolgen über die Rechtsanwaltskanzlei Dr. Karl Schön, Wickenburggasse 3/9, 1080 Wien.
Die dafür anfallenden Kosten betragen 2 % des Kaufpreises zuzüglich USt. sowie Barauslagen, inklusive Wohnungseigentumsbegründung und Treuhandabwicklung.
Zusätzlich zum Kaufpreis sind folgende gesetzliche Nebenkosten vom Käufer zu tragen:
* 3,5 % Grunderwerbsteuer
* 1,1 % Grundbuchseintragungsgebühr
* allfällige Finanzierungskosten
Die beiliegende Nebenkostenübersicht gemäß § 30b KSchG ist bei Geschäften mit Konsumenten Vertragsbestandteil. Wir weisen gemäß § 6 Abs. 4 Maklergesetz auf ein wirtschaftliches Naheverhältnis zum Eigentümer hin und halten fest, dass wir als Doppelmakler tätig sind.
Dieses Angebot ist freibleibend und unverbindlich. Alle Angaben stammen vom Eigentümer oder Dritten - für deren Richtigkeit wird keine Haftung übernommen.
HERZLICHEN DANK FÜR IHR INTERESSE!
Lernen Sie Ihre Wunschimmobilie in aller Ruhe kennen - wir nehmen uns gerne Zeit für Sie! Beratung und Besichtigungen sind für Sie selbstverständlich kostenlos und völlig unverbindlich.
Nur bei erfolgreichem Abschluss eines Kaufvertrages fällt ein Maklerhonorar laut Verordnung an: 3 % des Kaufpreises plus 20 % USt.
WIR FREUEN UNS ÜBER IHRE KONTAKTAUFNAHME PER EMAIL ODER TELEFON!
Betreut von:
Ing. Robert Posch
Konz. Immobilienmakler- Treuhänder
Mobil: +43 699 15115000
office@posch-immobilien.at
www.posch-immobilien.at [http://www.posch-immobilien.at]
Wir weisen darauf hin, dass zwischen dem Vermittler und dem zu vermittelnden Dritten ein familiäres oder wirtschaftliches Naheverhältnis besteht.
Der Vermittler ist als Doppelmakler tätig.
Akkonplatz / Tautenhayngasse / Breitenseer Straße/ U3 Hütteldorferstraße / U3 Johnstraße
Ansprechpartner
Mobil: +43 699 151 15000
office@posch-immobilien.at
Ich bin damit einverstanden, dass mir Karten von Google angezeigt werden. Es gelten die Datenschutzbedingungen von Google (https://policies.google.com/privacy).
Ich bin einverstanden